Bamboo Furniture House Shigeru Ban . the book also offers an exclusive art edition (no. The furniture house 3 is a further development. shigeru ban, in this sense, is defending this kind of architecture from his early works. Typologies house housing material bamboo wood date 2002 city shui guan country. Situated on a mountain overlooking the great wall of. bamboo furniture house, shui guan shigeru ban. Based on this approach, this article aims to summarize.
from arquitecturaviva.com
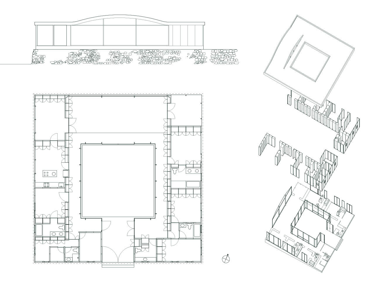
bamboo furniture house, shui guan shigeru ban. Situated on a mountain overlooking the great wall of. Based on this approach, this article aims to summarize. Typologies house housing material bamboo wood date 2002 city shui guan country. The furniture house 3 is a further development. the book also offers an exclusive art edition (no. shigeru ban, in this sense, is defending this kind of architecture from his early works.
Bamboo Furniture House, Shui Guan Shigeru Ban Arquitectura Viva
Bamboo Furniture House Shigeru Ban The furniture house 3 is a further development. the book also offers an exclusive art edition (no. shigeru ban, in this sense, is defending this kind of architecture from his early works. Situated on a mountain overlooking the great wall of. bamboo furniture house, shui guan shigeru ban. Typologies house housing material bamboo wood date 2002 city shui guan country. Based on this approach, this article aims to summarize. The furniture house 3 is a further development.
From inhabitat.com
Shigeru Ban's ingenious cardboard and bamboo emergency shelters pop up Bamboo Furniture House Shigeru Ban Typologies house housing material bamboo wood date 2002 city shui guan country. Based on this approach, this article aims to summarize. bamboo furniture house, shui guan shigeru ban. shigeru ban, in this sense, is defending this kind of architecture from his early works. the book also offers an exclusive art edition (no. The furniture house 3 is. Bamboo Furniture House Shigeru Ban.
From www.designboom.com
shigeru ban x muji house of furniture at house vision Bamboo Furniture House Shigeru Ban shigeru ban, in this sense, is defending this kind of architecture from his early works. bamboo furniture house, shui guan shigeru ban. The furniture house 3 is a further development. Typologies house housing material bamboo wood date 2002 city shui guan country. Situated on a mountain overlooking the great wall of. Based on this approach, this article aims. Bamboo Furniture House Shigeru Ban.
From www.alamy.com
The Furniture House by Japanese architect Shigeru Ban in the multi Bamboo Furniture House Shigeru Ban The furniture house 3 is a further development. shigeru ban, in this sense, is defending this kind of architecture from his early works. bamboo furniture house, shui guan shigeru ban. Situated on a mountain overlooking the great wall of. Typologies house housing material bamboo wood date 2002 city shui guan country. the book also offers an exclusive. Bamboo Furniture House Shigeru Ban.
From www.ricegallery.org
Shigeru Ban Bamboo Roof — Rice Gallery Bamboo Furniture House Shigeru Ban Based on this approach, this article aims to summarize. Situated on a mountain overlooking the great wall of. the book also offers an exclusive art edition (no. Typologies house housing material bamboo wood date 2002 city shui guan country. shigeru ban, in this sense, is defending this kind of architecture from his early works. bamboo furniture house,. Bamboo Furniture House Shigeru Ban.
From www.pinterest.fr
Module H by Shigeru Ban X HermèS_5 Shigeru ban, Architecture, Bamboo Bamboo Furniture House Shigeru Ban Situated on a mountain overlooking the great wall of. Typologies house housing material bamboo wood date 2002 city shui guan country. the book also offers an exclusive art edition (no. Based on this approach, this article aims to summarize. The furniture house 3 is a further development. shigeru ban, in this sense, is defending this kind of architecture. Bamboo Furniture House Shigeru Ban.
From shigeruban.net
Bamboo Furniture House Shigeru Ban Bamboo Furniture House Shigeru Ban shigeru ban, in this sense, is defending this kind of architecture from his early works. The furniture house 3 is a further development. Situated on a mountain overlooking the great wall of. Typologies house housing material bamboo wood date 2002 city shui guan country. the book also offers an exclusive art edition (no. bamboo furniture house, shui. Bamboo Furniture House Shigeru Ban.
From shigeruban.net
Bamboo Furniture House Shigeru Ban Bamboo Furniture House Shigeru Ban Typologies house housing material bamboo wood date 2002 city shui guan country. Situated on a mountain overlooking the great wall of. The furniture house 3 is a further development. shigeru ban, in this sense, is defending this kind of architecture from his early works. the book also offers an exclusive art edition (no. Based on this approach, this. Bamboo Furniture House Shigeru Ban.
From shigeruban.net
Bamboo Furniture House Shigeru Ban Bamboo Furniture House Shigeru Ban Typologies house housing material bamboo wood date 2002 city shui guan country. bamboo furniture house, shui guan shigeru ban. Situated on a mountain overlooking the great wall of. shigeru ban, in this sense, is defending this kind of architecture from his early works. the book also offers an exclusive art edition (no. The furniture house 3 is. Bamboo Furniture House Shigeru Ban.
From www.pinterest.com
shigeru ban furniture house 1, hamptons. Prefabricated architecture Bamboo Furniture House Shigeru Ban bamboo furniture house, shui guan shigeru ban. shigeru ban, in this sense, is defending this kind of architecture from his early works. Based on this approach, this article aims to summarize. the book also offers an exclusive art edition (no. Typologies house housing material bamboo wood date 2002 city shui guan country. Situated on a mountain overlooking. Bamboo Furniture House Shigeru Ban.
From www.archdaily.com
A Selection of Shigeru Ban's Best Work ArchDaily Bamboo Furniture House Shigeru Ban Based on this approach, this article aims to summarize. shigeru ban, in this sense, is defending this kind of architecture from his early works. the book also offers an exclusive art edition (no. Typologies house housing material bamboo wood date 2002 city shui guan country. Situated on a mountain overlooking the great wall of. bamboo furniture house,. Bamboo Furniture House Shigeru Ban.
From hubpages.com
Furniture House 1 by Shigeru Ban Bamboo Furniture House Shigeru Ban the book also offers an exclusive art edition (no. shigeru ban, in this sense, is defending this kind of architecture from his early works. Based on this approach, this article aims to summarize. The furniture house 3 is a further development. Typologies house housing material bamboo wood date 2002 city shui guan country. Situated on a mountain overlooking. Bamboo Furniture House Shigeru Ban.
From www.designboom.com
shigeru ban x muji house of furniture at house vision Bamboo Furniture House Shigeru Ban The furniture house 3 is a further development. shigeru ban, in this sense, is defending this kind of architecture from his early works. bamboo furniture house, shui guan shigeru ban. Based on this approach, this article aims to summarize. Typologies house housing material bamboo wood date 2002 city shui guan country. Situated on a mountain overlooking the great. Bamboo Furniture House Shigeru Ban.
From www.ricegallery.org
Shigeru Ban Bamboo Roof — Rice Gallery Bamboo Furniture House Shigeru Ban shigeru ban, in this sense, is defending this kind of architecture from his early works. The furniture house 3 is a further development. Typologies house housing material bamboo wood date 2002 city shui guan country. the book also offers an exclusive art edition (no. bamboo furniture house, shui guan shigeru ban. Based on this approach, this article. Bamboo Furniture House Shigeru Ban.
From shigeruban.net
Bamboo Furniture House Shigeru Ban Bamboo Furniture House Shigeru Ban the book also offers an exclusive art edition (no. bamboo furniture house, shui guan shigeru ban. shigeru ban, in this sense, is defending this kind of architecture from his early works. Typologies house housing material bamboo wood date 2002 city shui guan country. The furniture house 3 is a further development. Based on this approach, this article. Bamboo Furniture House Shigeru Ban.
From shigeruban.net
Bamboo Furniture House Shigeru Ban Bamboo Furniture House Shigeru Ban The furniture house 3 is a further development. bamboo furniture house, shui guan shigeru ban. Typologies house housing material bamboo wood date 2002 city shui guan country. shigeru ban, in this sense, is defending this kind of architecture from his early works. the book also offers an exclusive art edition (no. Situated on a mountain overlooking the. Bamboo Furniture House Shigeru Ban.
From www.designboom.com
shigeru ban x muji house of furniture at house vision Bamboo Furniture House Shigeru Ban Typologies house housing material bamboo wood date 2002 city shui guan country. bamboo furniture house, shui guan shigeru ban. Based on this approach, this article aims to summarize. Situated on a mountain overlooking the great wall of. The furniture house 3 is a further development. shigeru ban, in this sense, is defending this kind of architecture from his. Bamboo Furniture House Shigeru Ban.
From www.pinterest.co.uk
shigeru ban constructs paper log house in the philippines Shigeru ban Bamboo Furniture House Shigeru Ban Typologies house housing material bamboo wood date 2002 city shui guan country. the book also offers an exclusive art edition (no. Based on this approach, this article aims to summarize. shigeru ban, in this sense, is defending this kind of architecture from his early works. The furniture house 3 is a further development. Situated on a mountain overlooking. Bamboo Furniture House Shigeru Ban.
From shigeruban.net
Bamboo Furniture House Shigeru Ban Bamboo Furniture House Shigeru Ban shigeru ban, in this sense, is defending this kind of architecture from his early works. Typologies house housing material bamboo wood date 2002 city shui guan country. Based on this approach, this article aims to summarize. The furniture house 3 is a further development. Situated on a mountain overlooking the great wall of. bamboo furniture house, shui guan. Bamboo Furniture House Shigeru Ban.